|

|
ZJHJ精小型氣動薄膜調節角閥采用頂部導向結構,配用多彈簧執行機構。具有結構緊湊、重量輕、動作靈敏、流體通道呈S流線型、壓力損失小、閥容量大、流量特性精確、拆裝方便等優點。廣泛應用于精確控制氣體、液體等介質的工藝參數如壓力、流量溫度、液位保持在給定值。特別適用于允許泄漏量小,閥前后壓差不大的高粘度,含有懸浮物和顆粒狀物質流體的調節,可避免結焦、堵塞、便于自凈與清洗的場合。 |
一、閥體
形 式:角形單座鑄造閥
公稱通徑:20-300mm
公稱壓力:PN1.6 4.0 6.4MPa
連接形式:法蘭按JB78-59 JB79-59
材 料:HT200 ZG230—450 ZG1Cr18Ni9Ti ZG0Cr18Ni12Mn2Ti
二、上閥蓋
常溫型:-20~+200℃
散熱型:-40~+450℃
壓蓋形式:螺栓壓緊式
填 料:V型聚四氟乙烯填料,柔性石墨、不銹鋼波紋管。
三、閥內組件
閥芯型式: 上導向單座柱塞型閥芯
流量特性: 等百分比特性、線性特性和快開特性
材 料:1C18Ni9Ti 0Cr18Ni12Mo2Ti
四、執行機構
型 式 :多彈簧式薄膜執行機構
膜片材料: 丁晴橡膠夾增強滌綸積物
彈簧范圍 :0.02~0.10、0.08~0.24MPa
供氣壓力: 0.14、0.16、0.28、0.40MPa
氣源接頭: 內螺紋M10×1
環境溫度: -30~+70℃
閥作用型式 : 氣—開式或氣—關式
附 件 : 定位器、手輪機構
五、性能
泄漏量 : 金屬閥座符合標準ANSIB16.104IV級
小于額定Cv的0.01%
回 差 : 3%(不帶定位器)
1%(帶定位器)
線 性 : ±5%(不帶定位器)
±1%(帶定位器)
備注:使用V型聚四氟乙烯填料
可調范圍 : 50:1
六、ZJHJ型氣動角型調節閥規格參數表
七、主要零件材料及推薦使用溫度范圍
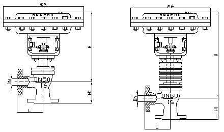
八、外裝尺寸
|